Skip to content

PROJECTS

On this page you can see some of my selected works in the field of architectural and MEP design, renovation, and graphical design.

I design and develop  ENERGY PERFORMANCE STRATEGIES ENERGY MODELS BIM MODELS

On this page you can see some of my selected works in the field of architectural design, MEP design, and renovation projects.

 

U-Shape House

Role: Architecture Design, Architectural and Electrical Plan

Area: First Floor: 6788 SF, Second Floor: 1990 SF

Year: 2021

Location: United States

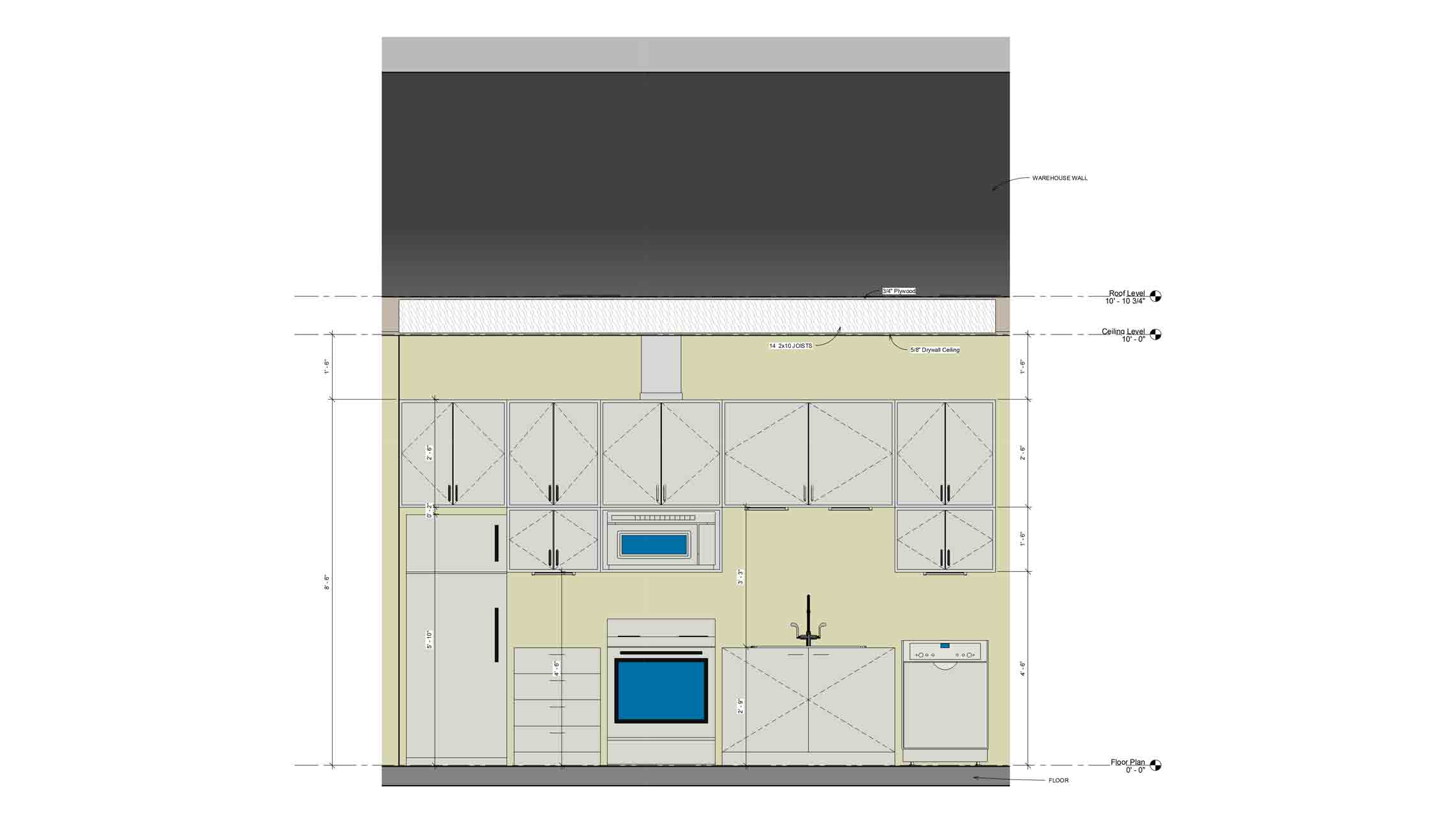
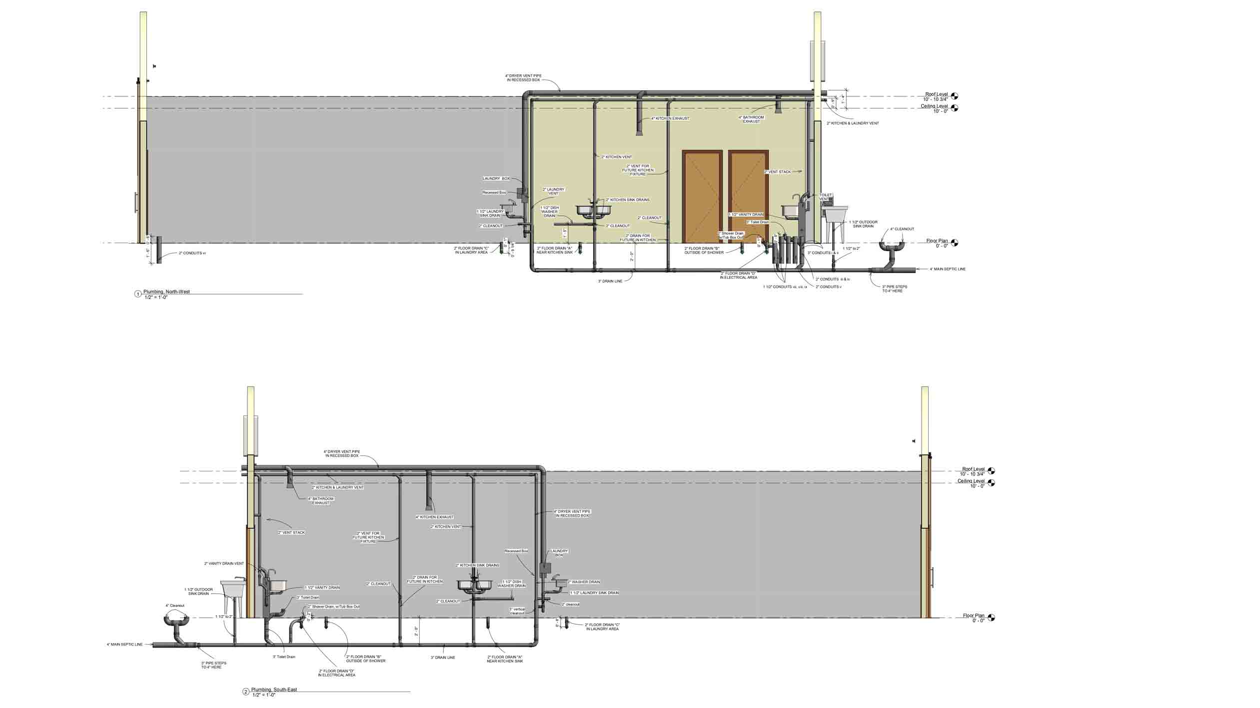
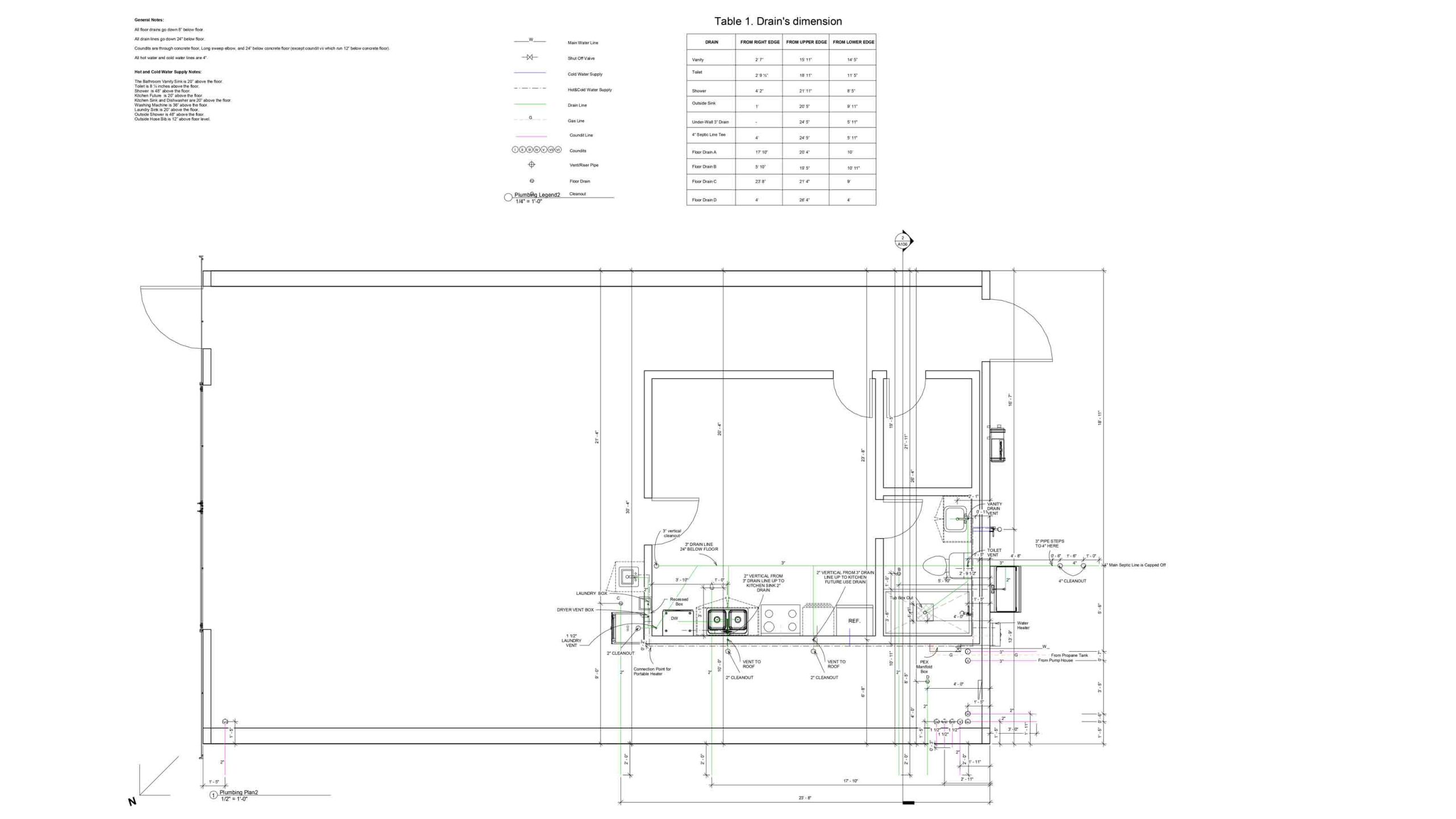
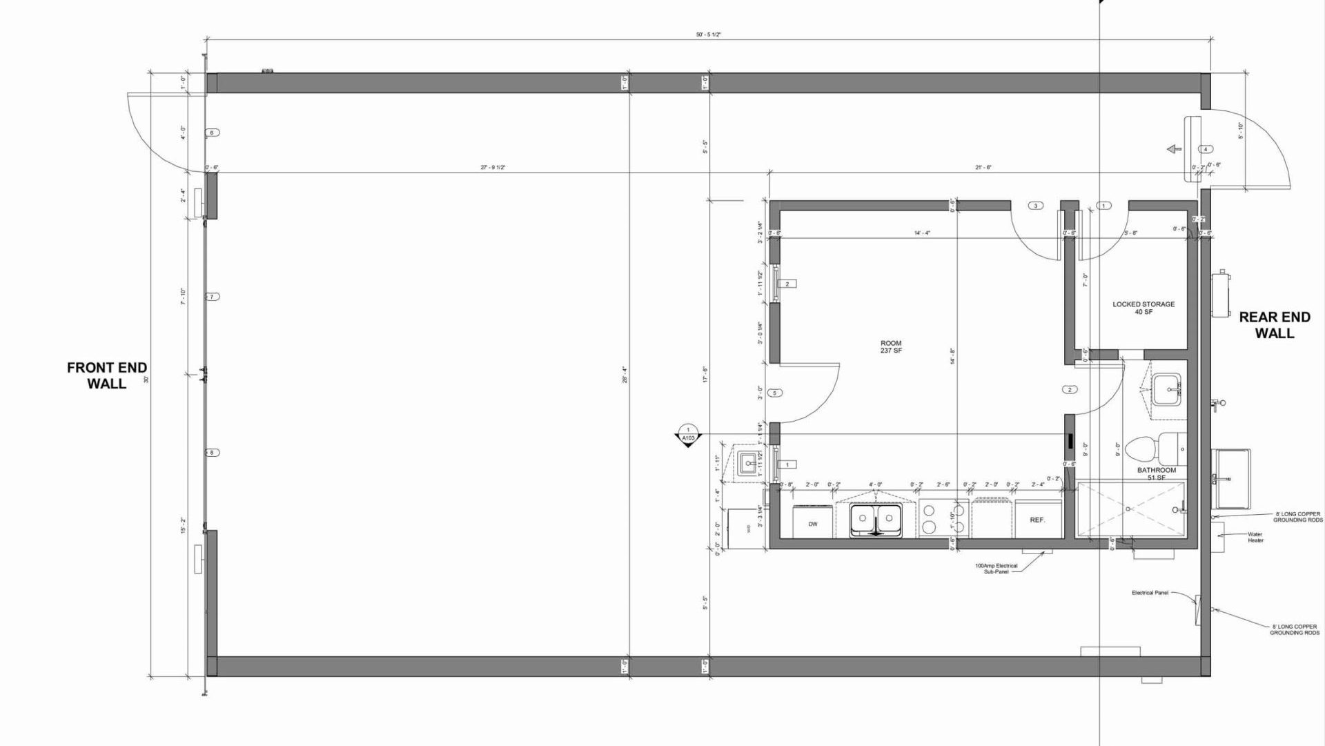
James Frinier House

Role: Architecture Design, Architectural and MEP plan, 3D of Plumbing, 3D of Electrical

Area: 1515 SF

Year: 2024

Location: Texas, United States

Rahul House

Role: Renovation and Expansion of the House, Architecture Plan

Area: Basement: 2090 SF, First Floor: 2130 SF, Second Floor: 1815 SF

Year: 2023

 

Tom Woehrman House

Role: Architecture Design, Architectural and MEP Plan

Area: Basement: 680 SF, First Floor: 2330 SF, Second Floor: 630 SF

Year: 2022

Location: United States

Bryn House

Role: Renovating Architectural Plan

Area: First Floor: 2828 SF, Second Floor: 1120 SF

Year: 2022

Location: United States

Femi House

Role: Architecture Design, Architectural Plan

Area: First Floor: 3712 SF, Second Floor: 2065 SF

Year: 2022

Location: Midland, Texas, United States

Kiko House

Role: Renovation, Architectural Plans

Area: First Floor: 1193 SF, Second Floor: 513 SF

Year: 2022

Location: Cle Elum, Washington State, United States

Villa

Client: Rasa Office

Role: 3D Modeling, Technical Documents, Maquette

Year: 2019

Location: Mashhad, Iran